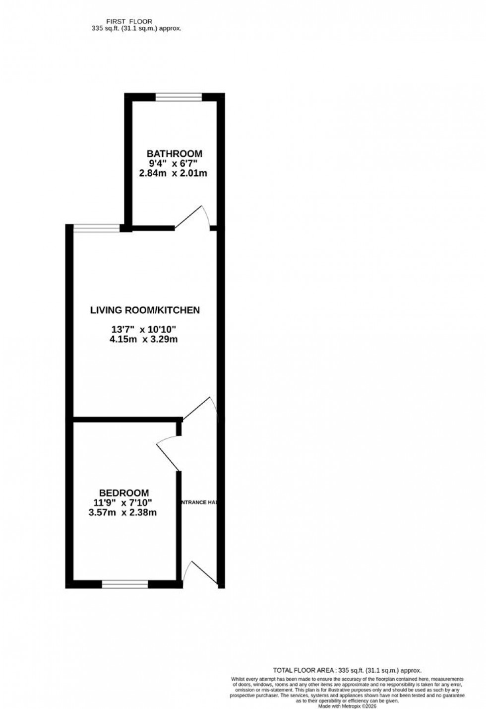
ONE BEDROOM FIRST FLOOR MAISONETTE LOCATED JUST 0.6 MILES TO WATFORD GENERAL HOSPITAL AND AVAILABLE NOW! A well-presented one-bedroom first-floor maisonette with its own private entrance, ideally located on Liverpool Road, just 0.6 miles from Watford General Hospital and 0.5 miles from Watford...