COURT VIEW Whippendell Road, Watford

To Let £1,600 PCM

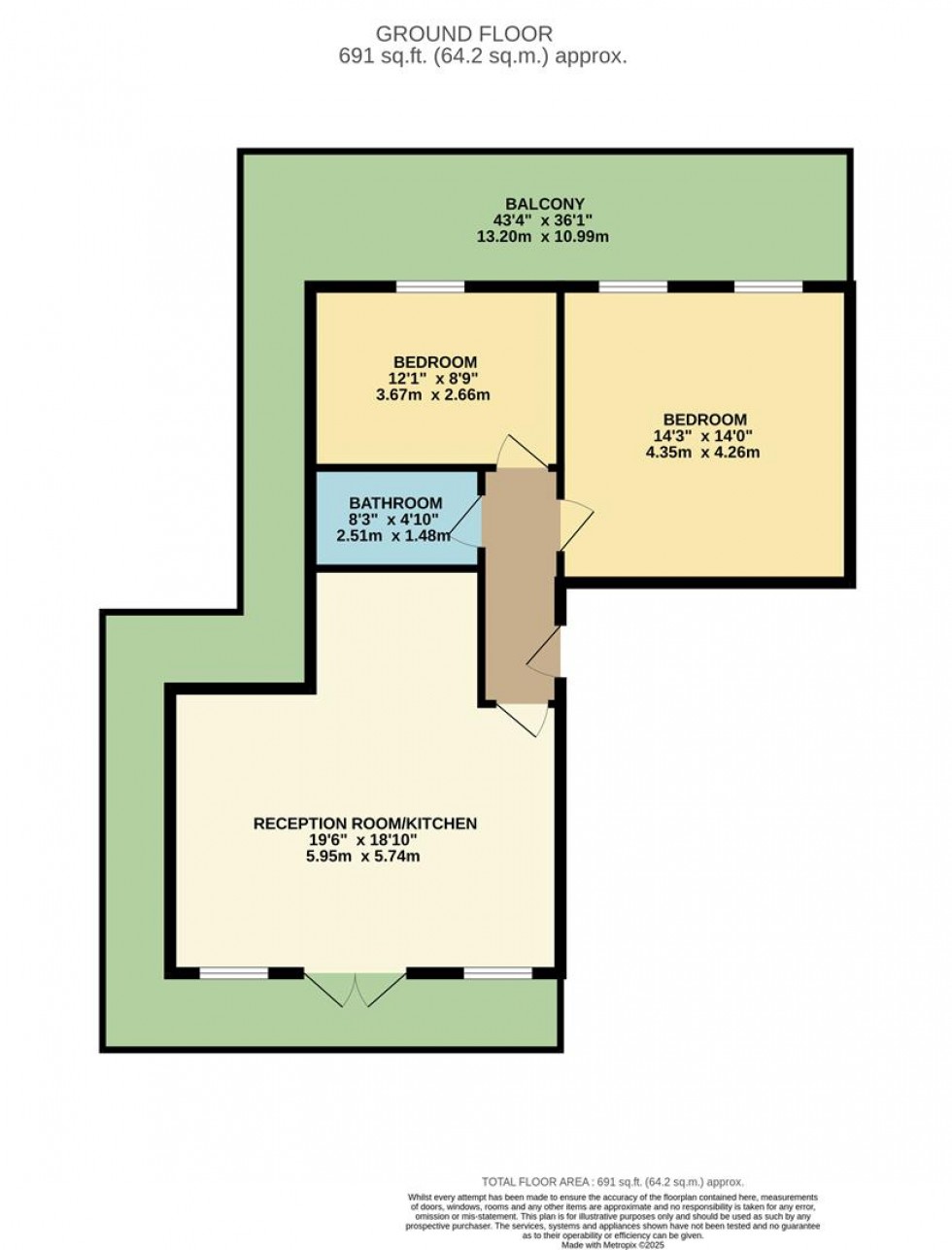
2 1 1

Enter either through the communal entrance door or via the carpark with secure entry phone system.

Private entrance door into the hallway with doors leading to the hallway, the kitchen with lounge/diner, the two bedrooms and the bathroom.

The kitchen is fitted with a range of white high gloss wall and base units, rolltop worksurfaces, stainless steel sink with drainer unit and mixer tap, integrated gas oven with inset gas hob and stainless steel extractor hood above, metro tiles to walls and inset ceiling lights.

Space and plumbing for washing machine, integrated full size fridge freezer and fridge freezer.

Underfloor heating.

Encompassing the dining area, ideal for socialising and entertaining guests then the bright and spacious lounge/diner which is tastefully decorated in neutral tones and wood flooring.

The large doors lead out onto a balcony.

Underfloor heating.

Both the bedrooms are doubles with wood flooring, pendant lighting, and storage.

Underfloor heating.

The bathroom has a close-coupled WC, wash basin with vanity unit, an independent shower cubicle fitted with electric shower, tiled walls and flooring.

Underfloor heating.

Wrap around balcony with attractive glass balustrade.

There are two secure allocated car park space.

Service Charge from April 2025 is: £1,808.12 per year Ground Rent: £350 per year Lease Term: 117 years remaining The vendor has provided us with this information and we have seen no documented evidence to support this.

  • MODERN TOP FLOOR APARTMENT
  • INCLUDES A BALCONY
  • 1 PARKING SPACE WITH PROPERTY
  • TWO SPACIOUS DOUBLE BEDROOMS
  • 0.7 MILES TO WATFORD GENERAL HOPSITAL
  • MINUTES WALK TO WATFORD TOWN CENTRE
  • 0.6 MILES TO CASSIOBURY PARK
  • 0.8 MILES TO WATFORD MET STATION
  • UNFURNISHED
  • AVAILABLE NOW
Floorplan for COURT VIEW Whippendell Road, Watford
EPC Graph for COURT VIEW Whippendell Road, Watford
Similar Properties

Book a valuation

Find out how much your property is worth