The Larches, Bushey

Sold Subject to Contract £225,000

1 1 1

The Larches is sought after private cul-de-sac yet only a short walk to the Bushey Station and all local amenities.

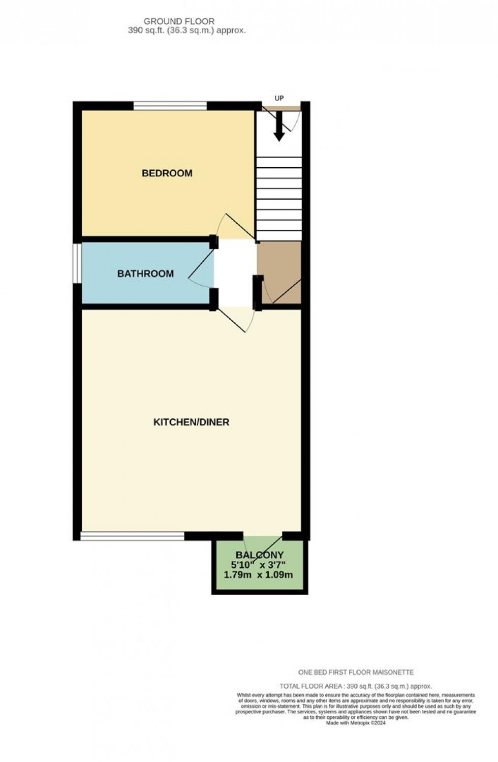
Our property is a first floor maisonette which in in need of some tlc and modernisation to bring it back to its former glory.

Comprising of a very spacious reception room with with kitchen area, breakfast bar and french doors leading to a balcony overlooking the development.

Located on the end of terrace providing privacy and leafy views.

There is also a bathroom and bedroom which overlooks the rear aspect.

This property also comes its own private garage with additional on the road parking within a private cul-de-sac location.

The property has a long leasehold 990 and we advise you to call in the first instance to arrange an early inspection to avoid disappointment.

LEASE: 990 years remaining SERVICE CHARGE: £1,223.31 GROUND RENT: peppercorm

Floorplan for The Larches, Bushey
EPC Graph for The Larches, Bushey
Similar Property

Book a valuation

Find out how much your property is worth